$3,288,000
2 days on market


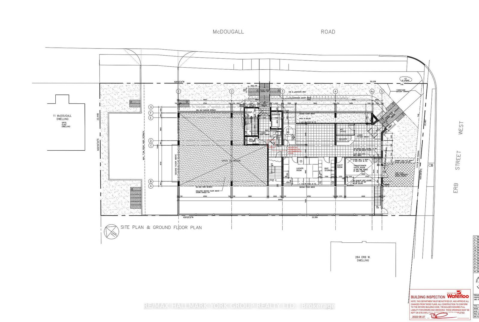
Previously approved site plan for a 35-unit rental/condominium development, zoned RMU-20 (Residential Mixed Use)-a compelling opportunity tailored for small to mid-sized developers targeting a proven, high-demand rental corridor.Positioned just steps from the University of Waterloo and Wilfrid Laurier University, the property is ideally suited for student housing as well as potential senior/retirement-oriented rental concepts. The location offers consistent, year-round rental demand driven by a strong academic and local community base. Walking distance to both campuses, combined with a direct bus stop at the doorstep, ensures exceptional accessibility and enduring tenant appeal.Offered at land value with existing building permits in place (subject to amendment for updated plans), this is a rare, near shovel-ready development opportunity-allowing investors to accelerate timelines and unlock value with minimal upfront entitlement risk.
282 Erb Street W
Listing provided by RE/MAX HALLMARK YORK GROUP REALTY LTD.
Based on information from the Toronto Regional Real Estate Board (TRREB). All information deemed reliable but not guaranteed and should be independently verified. The accuracy of information is not guaranteed, has not been verified, and does not constitute professional advice.
IDX information is provided exclusively for consumers' personal, non-commercial use. It may not be used for any purpose other than identifying prospective properties consumers may be interested in purchasing or renting.
Sold and leased listing data is provided under the Virtual Office Website (VOW) data feed and is available only to registered users who have agreed to the Terms of Use. This data is for personal, non-commercial use only and may not be copied, redistributed, or retransmitted.
MLS®, REALTOR®, and the associated logos are certification marks owned by the Canadian Real Estate Association (CREA) and identify real estate professionals who are members of CREA.
This listing content is not intended to solicit properties already listed for sale or individuals who are currently under contract with a brokerage.
Data last updated: April 17, 2026 at 03:40 p.m.